Exclusivité – Résidence "A SUARA" à Suartello, Ajaccio, Bâtiment A
Découvrez la nouvelle tranche de la résidence "A SUARA", idéalement située à Suartello, aux portes d’Ajaccio et proche de Mezzavia. Entre nature et ville, cette résidence moderne vous propose des appartements confortables avec des prestations de qualité.
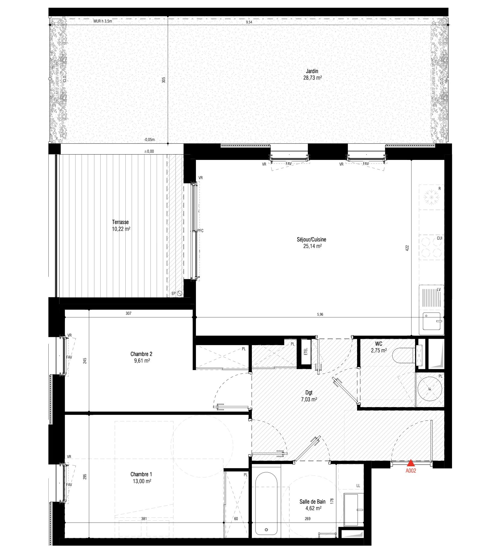
Appartement T3 de 64,68 m² avec terrasse de 10,22 m², jardin de 28,73 m² et parking privé. Les espaces communs sont végétalisés, offrant un cadre agréable et harmonieux. Vous pourrez personnaliser votre intérieur selon vos goûts.
Investir dans cette résidence récente, c’est profiter des dernières normes de construction, réaliser des économies d’énergie et bénéficier de frais de notaire réduits.
Située dans une zone stratégique, la résidence est proche de Baléone, des commerces et services, à seulement 10 minutes de l’aéroport d’Ajaccio et moins de 5 minutes de l’hôpital.
Que ce soit pour votre résidence principale (prêt à taux zéro possible pour les primo-accédants) ou pour un investissement locatif, la résidence "A SUARA" répondra aux attentes des plus exigeants.
Contactez-nous pour plus d’informations et des conseils
personnalisés : 04 95 21 31 80 ou rendez-nous visite à l’agence, 5 avenue Eugène Macchini, 20000 Ajaccio (à côté de la brasserie du Diamant).
Les informations sur les risques auxquels ce bien est exposé sont disponibles sur le site Géorisques : www.georisques.gouv.fr % agency
Plus de détails
| Référence |
FFR2 |
| Étage |
Rez-de-chaussée |
| Nombre d'étages |
2 |
| Standing |
Standing |
| Vue |
Dégagée |
| Chauffage |
Climatisation |
| Accès chauffage |
Individuel |
| Type de chauffage |
Electrique |
| Accès eau chaude |
Individuelle |
| Eaux usées |
Tout à l'égout |
| Nombre de lots |
201 |
| Charges de copropriété |
Nous consulter
|